HISTORICAL CHARM
HISTORICAL CHARM
Project Like Never Before
In transforming our corporate office, our primary objective was to cultivate an atmosphere of refined opulence and a sense of enduring establishment, diverging from the typical sheen of a new workspace. Our dedicated efforts centered on small detailing across interiors, furniture, and fixtures, prioritizing a seamless integration of elements that conveyed a sense of longevity.
Emphasizing the importance of corporate culture, we strategically installed art and captivating artifacts throughout the office, elevating the overall aesthetic. This meticulous approach resulted in a stately corporate environment, leaving our client exceptionally pleased with the subtle yet impactful transformation of their office space.
Commercial
Category
2022
Year
Savills
Client
TAMPA, FL, USA.
Location
The Space
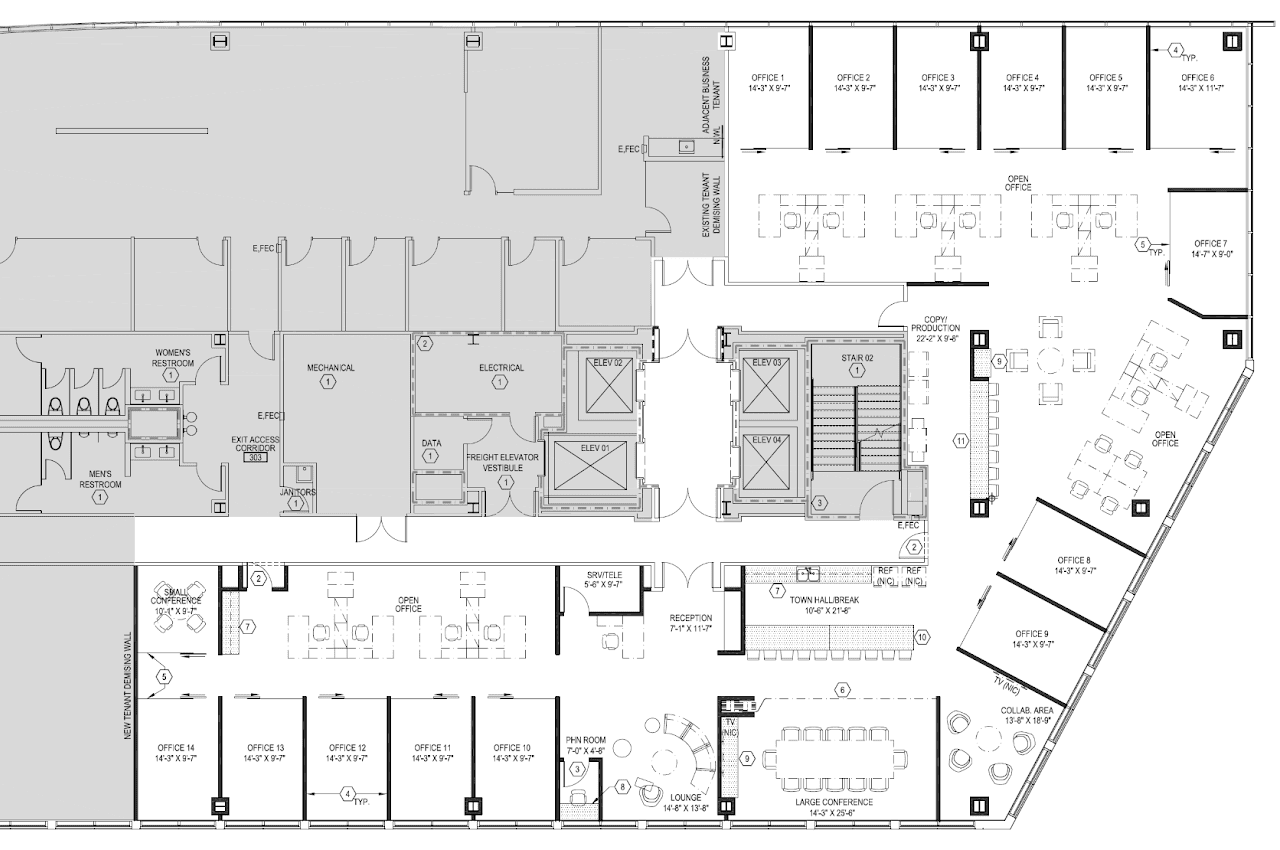
A newly bought 6,635 sq. ft. corporate space in the heart of Tampa, set to be the new offices of Savills. As one of the world's leading property advisors, Savills services span the globe, with more than 700 offices in the Americas, Europe, Asia Pacific, Africa, and the Middle East.
Adding an old world charm to a 6,635 sq. ft. corporate office
~ Renissa Mutha
TRANSFORMATION THAT TELLS A STORY
TRANSFORMATION THAT TELLS A STORY
From a raw concrete shell to a warm, sophisticated workplace infused with Tampa’s historic charm.
This 6,635 sq. ft. corporate space for Savills began as an untouched, industrial-floorplate – open columns, bare ceilings, and cold daylight bouncing off unfinished surfaces. Our mandate was clear: elevate it into a refined, timeless corporate environment while preserving the understated elegance the brand is known for.
The Result
The Result
We understood the brief from the client and, as per their vision, we went in the direction of transforming from a typical corporate company to curating a warm, welcoming, and quietly elegant vibe for this office space. One which felt more like a Tampa home. We knew we were on the right track when our mood boards and renders were all approved on the first go.
Renissa Mutha - Owner of Decospaa Design








